Die Restaurierung in Bildern

2021 Winter und Frühjahr
Sanierung der Linde und der Rosskastanie
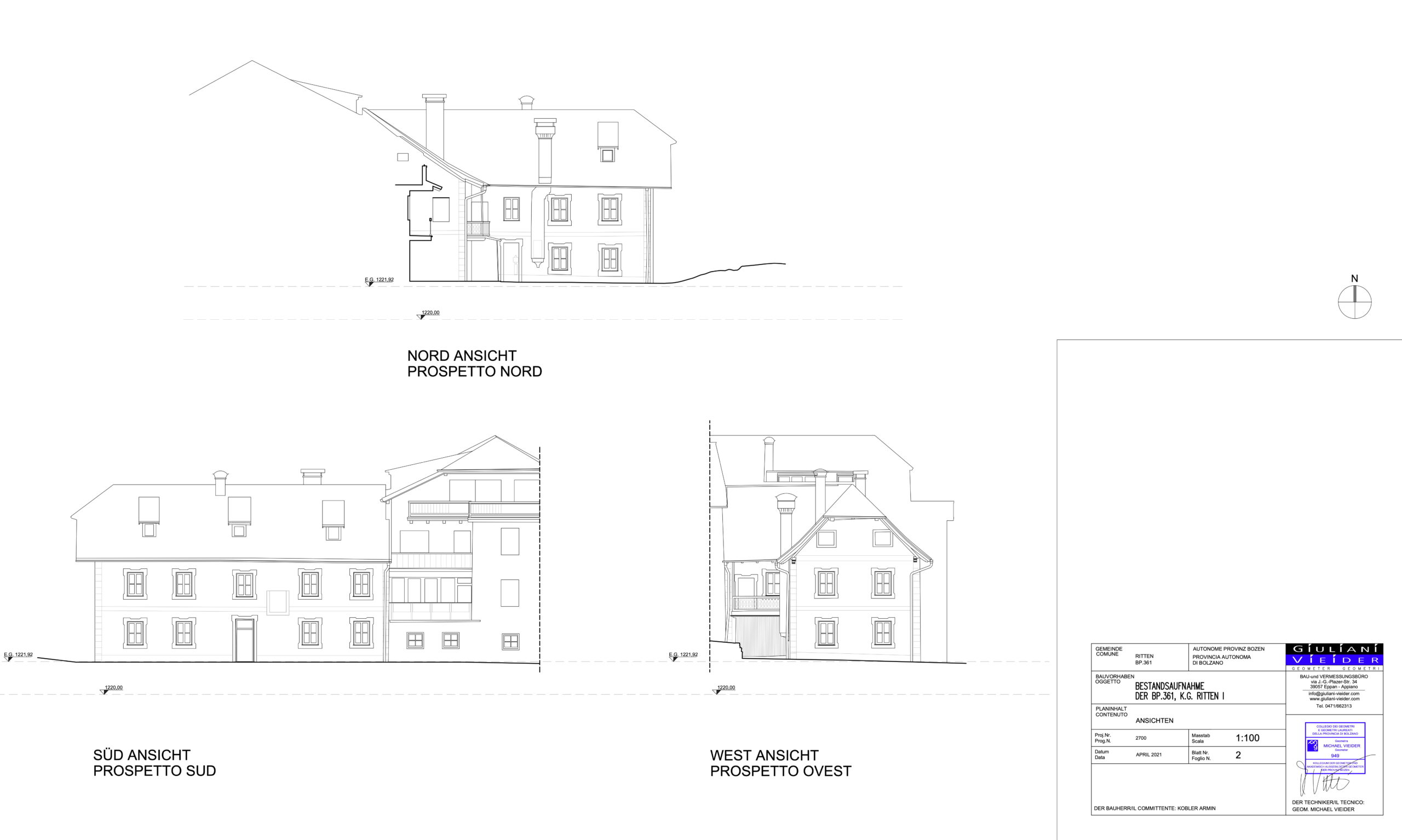
2021 Frühling:
Vermessung und erste Umbauvorschläge

2022 Frühling:
Pflanzung der Linden in der oberen Wiese
2022 Herbst:
Ausräumen des Hauses, Überstellen der Möbel ins Depot
2022 Herbst:
Baustelleneinrichtung und Bau der provisorischen Zufahrt
2022 Herbst:
Entnahme der Täfelungen und der Holzböden, Entdeckung der Schablonenmalerei
2022 Herbst
Abrissarbeiten
2022 Winter
Entdeckung Deckenbemalungen, „Hic fui“, Wandbemalungen, Bodenfließen, zugemauertes Fenster
2022 Winter
Entwässerung und Konsolidierung, Isolierung und Gießen der Böden
2023 Winter
Abholung alte Türen
2023 Winter
Detailplanung
2023 Winter-Frühling
Neueindeckung Dach
2023 Frühling-Sommer
Unterböden und Zwischenmauern
2023 Frühling-Sommer
Installation Wasser/Abwasser und Strom
2023 Herbst
Verlegung Sandsteinplatten innen, neue Holzböden und Fließen
2023 Herbst
Montage der neuen und der historischen Fenster
2023 Herbst-Winter
Feinputz innen und Restaurierung Wandgemälde
2023-2024 Winter
Montage alte Fußböden und Täfelungen
2024 Winter
Einrichtung Wohnung Lori und Montage Küche Wohnung Robert, Rückführung Möbel aus Lager
2024 Winter
Montage Sanitäranlagen
2024 Winter
Endmontage Elektroinstallationen
2024 Frühling
Restaurierung und Montage Fensterläden
2024 Frühling-Sommer
Einbau Regenwassertank und Außengestaltung
2024 Sommer
Restaurierung Fassade
2024 Herbst
Einrichtung Wohnungen Robert und Johanna sowie Einsetzen Wappenscheibe
2025 Winter
Farbanstrich Türen und Holzgeländer
2025 Winter
Restaurierung bemalte Decken
2025 Frühling-Sommer
Bau zusätzlicher Einfahrt und Parkplatzbucht
image_pdf